참여마당
질의응답
본문 시작
- 저속한 표현, 특정인 비방, 상업적 내용, 불법선거 등은 예고 없이 삭제될 수 있습니다.
- 주민번호 등 개인정보는 사생활 침해나 부당하게 이용될 수 있으니 주의하시기 바랍니다.
정보통신망 이용 촉진 및 정보보호등에 관한 법률 제44조
제목
판매시설의 에스컬레이터 설치공간이 스프링클러헤드를 설치해야 하는 대상인지 여부에 대한 질의
작성자
홍동욱
등록일
2021-12-22
조회수
5278
내용
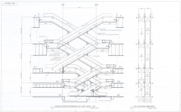
- 당 공사현장 판매시설에는 지하 3층부터 지상 2층까지 5개층에 에스컬레이터가 설치될 예정입니다.
- 에스컬레이터를 설치하는 공간이 「스프링클러설비의 화재안전기준」 제15조(헤드의 설치제외) 제1항 제1호의 “경사로”에 해당하는지 여부에 관한 질의입니다.
- 즉, 에스컬레이터를 설치하는 각층과 에스컬레이터를 설치하는 최상의 층인 지상 2층의 천장에 스프링클러헤드의 설치를 제외할 수 있는지에 관한 질의입니다.
- 한편, 에스컬레이터를 설치하는 공간의 모든 층(5개층)에는 방화셔터를 설치하여 열 및 연기 감지기에 의하여 화재 시 층간 연소확대가 되지 않도록 방화셔터가 작동되도록 조치하고 있습니다. (아래 도면 참조)
(에스컬레이터 설치 구역으로 물의 유입 시 발생되는 문제점)
- 에스컬레이터 설치 구역으로 물이 유입되면 에스컬레이터 구동 모터, 전자기판 및 전선 연결부 등 전기 구동부 일체가 단락되어 운영할 수 없게 됨
<참고사항>
- NFPA 13 A.8.15.4 에 의하면 에스컬레이터가 설치되는 수직 개구부에는 스프링클러헤드를 차폐장치에 의해 생긴 구석에 설치하도록 규정하여 소화수가 에스컬레이터 내부로 유입되지 않도록 하고 있음
NFPA 13: A.8.15.4 Where sprinklers in the normal ceiling pattern are closer than 6 ft (1.8 m) from the water curtain, it might be preferable to locate the water curtain sprinklers in recessed baffle pockets.
(See Figure A.8.15.4.)
- 에스컬레이터를 설치하는 공간이 「스프링클러설비의 화재안전기준」 제15조(헤드의 설치제외) 제1항 제1호의 “경사로”에 해당하는지 여부에 관한 질의입니다.
- 즉, 에스컬레이터를 설치하는 각층과 에스컬레이터를 설치하는 최상의 층인 지상 2층의 천장에 스프링클러헤드의 설치를 제외할 수 있는지에 관한 질의입니다.
- 한편, 에스컬레이터를 설치하는 공간의 모든 층(5개층)에는 방화셔터를 설치하여 열 및 연기 감지기에 의하여 화재 시 층간 연소확대가 되지 않도록 방화셔터가 작동되도록 조치하고 있습니다. (아래 도면 참조)
(에스컬레이터 설치 구역으로 물의 유입 시 발생되는 문제점)
- 에스컬레이터 설치 구역으로 물이 유입되면 에스컬레이터 구동 모터, 전자기판 및 전선 연결부 등 전기 구동부 일체가 단락되어 운영할 수 없게 됨
<참고사항>
- NFPA 13 A.8.15.4 에 의하면 에스컬레이터가 설치되는 수직 개구부에는 스프링클러헤드를 차폐장치에 의해 생긴 구석에 설치하도록 규정하여 소화수가 에스컬레이터 내부로 유입되지 않도록 하고 있음
NFPA 13: A.8.15.4 Where sprinklers in the normal ceiling pattern are closer than 6 ft (1.8 m) from the water curtain, it might be preferable to locate the water curtain sprinklers in recessed baffle pockets.
(See Figure A.8.15.4.)
첨부파일
image02.png
(다운로드 수: 903)
image01.png
(다운로드 수: 746)
이전 글
다음 글
